Becune Point Waterfront - Development Ready Land for sale
Becune Point Waterfront - Development Ready Land for Sale.
Luxury Coastal Estate. Becune Point, Cap Estate, St Lucia, Caribbean.
Positioned on one of the most exclusive cliff top locations in Cap Estate, this development ready coastal estate at Becune Point presents a rare opportunity to create a world class private residence overlooking the Caribbean Sea in St Lucia.
Set on an elevated, naturally terraced site with uninterrupted west facing ocean views, the property combines prime Caribbean location, completed architectural planning, and immediate development potential, offering a significant time and cost advantage for discerning buyers or investors.
This unique estate benefits from a fully prepared residential development project, including completed technical design and secured planning groundwork, allowing a purchaser to move forward with construction without the delays typically associated with new coastal developments.
Property Highlights:
Freehold Land Area: approx. 24,886 sq ft
Additional King’s Chain Coastal Lease Area: approx. 27,232 sq ft
Total Coastal Context: approx. 52,118 sq ft / 1.19 acres
Topography: Elevated, naturally terraced cliff-top site confirmed as buildable
Orientation: West facing with permanently unobstructed Caribbean Sea views
Access: Direct access via established road infrastructure within Cap Estate
The site’s natural terraces provide an exceptional setting for a luxury residence, maximizing views, privacy, and architectural integration with the coastal landscape.
Planning & Development Status:
Significant groundwork has already been completed, positioning this property as a turn key development opportunity.
Approval in Principle (AIP) granted for residential development
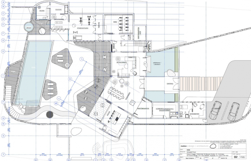
Bespoke site specific architectural concept completed
Approx. 8,000 sq ft internal built area planned across two levels
Full structural and engineering design completed
Design optimized for topography, wind exposure, and coastal conditions
Estimated 6–12 month development time advantage compared with starting a new planning process
The architectural concept follows a terraced layout aligned with the natural contours of the land, ensuring that all primary living areas and bedrooms are oriented toward the sea. Large open living spaces, expansive terraces, and seamless indoor-outdoor living are central to the design.
Importantly, the approved planning framework allows future owners to customize the final interior layout and design elements, while remaining within the established planning envelope, eliminating the need for fundamental re planning.
An Exceptional Caribbean Investment
Located in the prestigious residential enclave of Cap Estate, the property sits close to championship golf, luxury resorts, marinas, and international beaches, making it ideal for:
A private luxury Caribbean residence
A high end vacation home
A boutique luxury villa development
An investment property in the growing Caribbean luxury market
With development groundwork already secured, this estate offers a rare opportunity to fast-track the creation of a landmark coastal home in St Lucia.
Comprehensive documentation is available upon request, including planning approvals, architectural drawings, structural engineering reports, and technical development materials.
Click to browse more properties for sale in St Lucia, Caribbean.
Contact Us About Properties for Sale
Ready to buy your dream home or investment property? At Worldwide Dream Properties, we specialise in luxury real estate and exclusive homes in prime destinations worldwide.
From beachfront villas to plantation estates and private residences, we offer a curated collection of properties for sale, carefully selected with local insight and global expertise.
Our experienced team is here to help you find the perfect home that suits your lifestyle and investment goals.
Contact us today:
Email: [email protected]
UK: +44 (0)333 9398 246
USA/Canada: +1 347 707 1195
Barbados: +246 432 6307
For villa rentals worldwide, visit www.worldwidedreamvillas.com
Floor Plan

Amenities
- Income Potential
- Investment opportunity
- Ridgefront
- Sea view
